Koop:Karstraat 25a, 5451 AW Mill - Foto
+7

Karstraat 25a 5451 AW Mill € 190.000,- k.k.

  • Bouwgrond
  • 270 m² perceeloppervlakte

Beschrijving

Wonen “Onder de Molen” op een prima locatie aan de rand van dit mooie dorp Mill naast de plaatselijke molen.

Karstraat 25a ( W.2 ) wordt verkocht als bouwkavel, geschikt voor nieuwbouw van een vrijstaande woning.
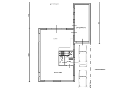
Woonoppervlakte 145m²
Inhoud 500m³
Perceel 270m²
Architect heeft deze woning getekend inclusief inpandige garage, drie slaapkamers en een vaste trap naar de ruime zolder.

Omgeving.
Project “Onder de Molen” ligt aan de rand van het dorp op loopafstand van alle voorzieningen.
Het leuke centrum heeft een ruim aanbod van horeca, er zijn verschillende scholen en twee supermarkten.
De N-wegen in de omgeving geven in combinatie met de A50 en A73 een vlotte verbinding met plaatsen als bijvoorbeeld Uden, Grave, Boxmeer en Nijmegen.

Planning verkoop.
- Bieden op deze woning mag u via Eerlijk Bieden op www.karstraat25a.nl; vraag ons naar het wachtwoord om in te loggen
- Ondertekenen van uw koopovereenkomst in overleg; planning april 2025
- Sloop omliggende schuurgedeelte door verkoper komt bij twee verkochte kavels; planning maand juli/augustus 2025
- Levering bij de notaris in overleg; planning in derde kwartaal 2025

Verdere informatie.
- Het bestemmingsplan met woonfunctie is in 2023 onherroepelijk vastgesteld door de gemeente.
- Alle relevante informatie inclusief schetsplannen vind u in de Dataroom op www.karstraat25a.nl; vraag ons naar het wachtwoord om in te loggen

Het complete projectgebied “Onder de Molen” in Mill gaat over:

W.1. Karstraat 27 ( verbouw vrijstaande woning )
Woonoppervlakte 158m²
Inhoud 600m³
Perceel 266m²

W.2. Karstraat 25a ( kavel voor nieuwbouw vrijstaande woning)
Woonoppervlakte 145m²
Inhoud 500m³
Perceel 270m²

W.3. Molenstraat 60 ( kavel voor nieuwbouw vrijstaande woning )
Woonoppervlakte 85m²
Inhoud 300m³
Perceel 255m²

Project makelaar:
Anjo van der Heijden
Register Makelaar/Taxateur
WoonBox Makelaardij
Mobiel:06-51498641

WoonBox voor uw WoonWens

Kaart

Kenmerken

Overdracht

Referentienummer
07822
Vraagprijs
€ 190.000,- k.k.
Aanvaarding
In overleg
Aangeboden sinds
Dinsdag 19 maart 2024
Laatste wijziging
Donderdag 10 april 2025

Bouw

Type object
Bouwgrond
Soort bouw
Nieuwbouw

Oppervlaktes en inhoud

Perceeloppervlakte
270 m²

Tuin

Type
Achtertuin
Oriëntering
Zuid-west

Uitrusting

Parkeergelegenheid
Inpandige garage

Kadastrale gegevens

Kadastrale aanduiding
Mill en Sint Hubert G 1458
Perceeloppervlakte
270 m²
Omvang
Deel perceel
Eigendomsituatie
Eigen grond

Media

Plattegronden

Brochure(s) en overige bijlagen

Brochure 4.0 Onder de Molen.pdf Download