Verkocht onder voorbehoud:Kennedystraat 22, 5298 TR Liempde - Foto
Verkocht onder voorbehoud
+54

Kennedystraat 22 5298 TR Liempde € 595.000,- k.k.

  • Woonhuis
  • 5 kamers
  • 4 slaapkamers
  • Bouwjaar 1966
  • 257 m² perceeloppervlakte
  • 140 m² gebruiksoppervlakte
  • A++ Energielabel A++

Beschrijving

Aan een rustige, groene straat in Liempde staat deze volledig gemoderniseerde, uitgebouwde en perfect afgewerkte twee-onder-een-kapwoning. De woning is oorspronkelijk gebouwd in 1966, maar is in 2021 van binnen en buiten compleet vernieuwd en daarna verder verduurzaamd. Het resultaat: energielabel A++, veel wooncomfort en een hoogwaardige afwerking.

Alle voorzieningen en (sport)verenigingen van Liempde liggen op loop- of fietsafstand. Boxtel, het NS-station en de oprit van de A2 zijn binnen enkele minuten bereikbaar.

Indeling

Entree/hal met meterkast, toilet en kelderkast. Glazen deur naar de royale en lichte woonkamer met open keuken en grote glazen pui met schuifdeuren naar de tuin.
De luxe keuken met wandmeubel en kookeiland is voorzien van een inductiefornuis met heteluchtoven, grill en warmhoudlade, Quooker, koel-vriescombinatie, vaatwasser, magnetron en wijnklimaatkast.
Aan de straatzijde een ruime zithoek, aan de tuinzijde de eethoek. In het midden van de woonkamer de open trap.
Via een glazen deur bereik je het portaal in de aanbouw als eerste achterom met garderobe en doorgang naar de ruime berging met kasten.
In deze berging een tweede deur als tweede achterom direct naar de carport en een derde deur naar de achtertuin.

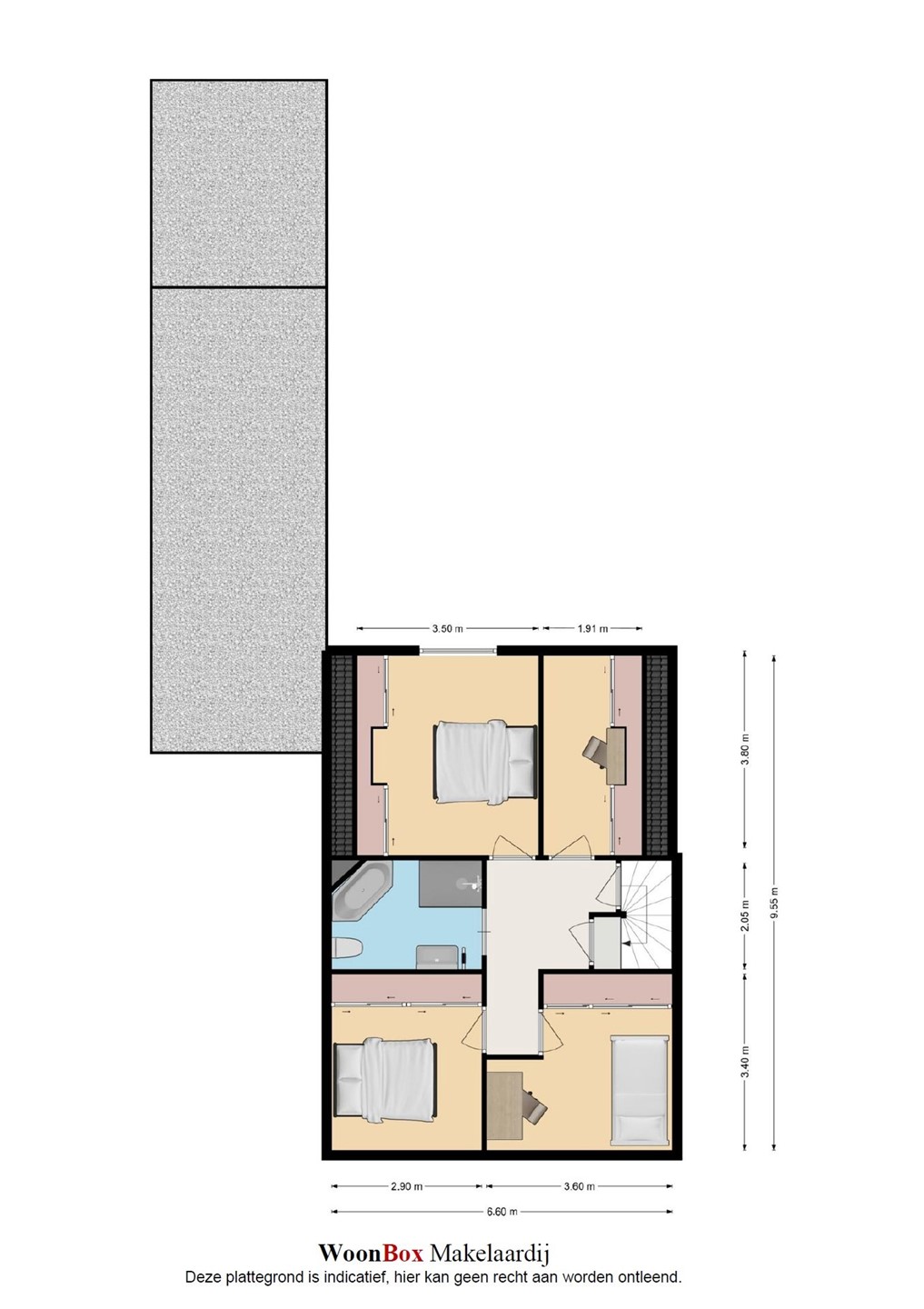
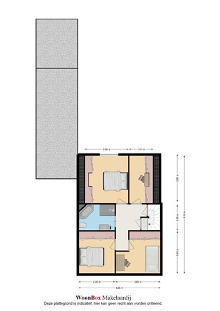
Eerste verdieping

Overloop met toegang tot vier slaapkamers, waarvan één in gebruik als werk-/studeerkamer. Alle kamers zijn strak afgewerkt en voorzien van een laminaatvloer en vaste kasten.
Moderne badkamer met ligbad, douchecabine, toilet, wastafelmeubel en elektrische vloerverwarming.

Tweede verdieping

Open ruimte met witgoedaansluitingen, bergruimte achter de knieschotten en een aparte technische ruimte met warmtepomp en elektrische boiler.

Tuin

Via de brede schuifpui stap je zo het terras op van de achtertuin.
De achtertuin is fraai aangelegd met olijfbomen, lichte bestrating en meerdere zitplekken, waardoor je je hier in Spanje waant. Achter de berging een tuinkamer met glazen schuifwand, buitenkeuken en loungehoek.
Aan de voorzijde een rustige breed opgezette straat met groenstrook.
Oprit en een strakke carport met lichtkoepel en de twee deuren in aanbouw als dubbele achterom.

Bijzonderheden

De verschillende vernieuwingen en aanpassingen op een rijtje:
2021 --> luxe badkamer, luxe keuken, gevel-, muur- en vloerisolatie, vloerverwarming, elektrische installatie, schilderwerk kozijnen, mechanische ventilatie.
2023 --> 12 zonnepanelen
2024 --> warmtepomp en elektrische boiler, gevels gereinigd, geïmpregneerd en opnieuw gevoegd, volledig zadeldak voorzien van nieuwe pannen

Kaart

Kenmerken

Overdracht

Referentienummer
07531
Vraagprijs
€ 595.000,- k.k.
Status
Verkocht onder voorbehoud
Aanvaarding
In overleg
Aangeboden sinds
Woensdag 4 februari 2026
Laatste wijziging
Vrijdag 6 maart 2026

Bouw

Type object
Woonhuis, eengezinswoning, twee onder een kap woning
Soort bouw
Bestaande bouw
Bouwperiode
1966
Dakbedekking
Bitumen
Dakpannen
Type dak
Zadeldak
Isolatievormen
HR-glas
Volledig geïsoleerd

Oppervlaktes en inhoud

Perceeloppervlakte
257 m²
Woonoppervlakte
140 m²
Inhoud
600 m³
Oppervlakte overige inpandige ruimten
38 m²
Oppervlakte gebouwgebonden buitenruimte
19 m²

Indeling

Aantal bouwlagen
3
Aantal kamers
5 (waarvan 4 slaapkamers)

Tuin

Type
Achtertuin
Hoofdtuin
Ja
Oriëntering
Noord west
Heeft een achterom
Ja
Staat
Prachtig aangelegd

Energieverbruik

Energielabel
A++

Uitrusting

Aantal parkeerplaatsen
2
Aantal overdekte parkeerplaatsen
1
Warm water
Elektrische boiler
Verwarmingssysteem
Vloerverwarming (gedeeltelijk)
Warmtepomp
Ventilatie methode
Mechanische ventilatie
Natuurlijke ventilatie
Tuin aanwezig
Ja
Heeft schuur/berging
Ja
Heeft een dakraam
Ja
Heeft zonnepanelen
Ja
Heeft ventilatie
Ja

Kadastrale gegevens

Kadastrale aanduiding
Liempde E 3326
Perceeloppervlakte
257 m²
Omvang
Geheel perceel
Eigendomsituatie
Eigen grond

Brochure(s) en overige bijlagen

Brochure Kennedystraat 22.pdf Download